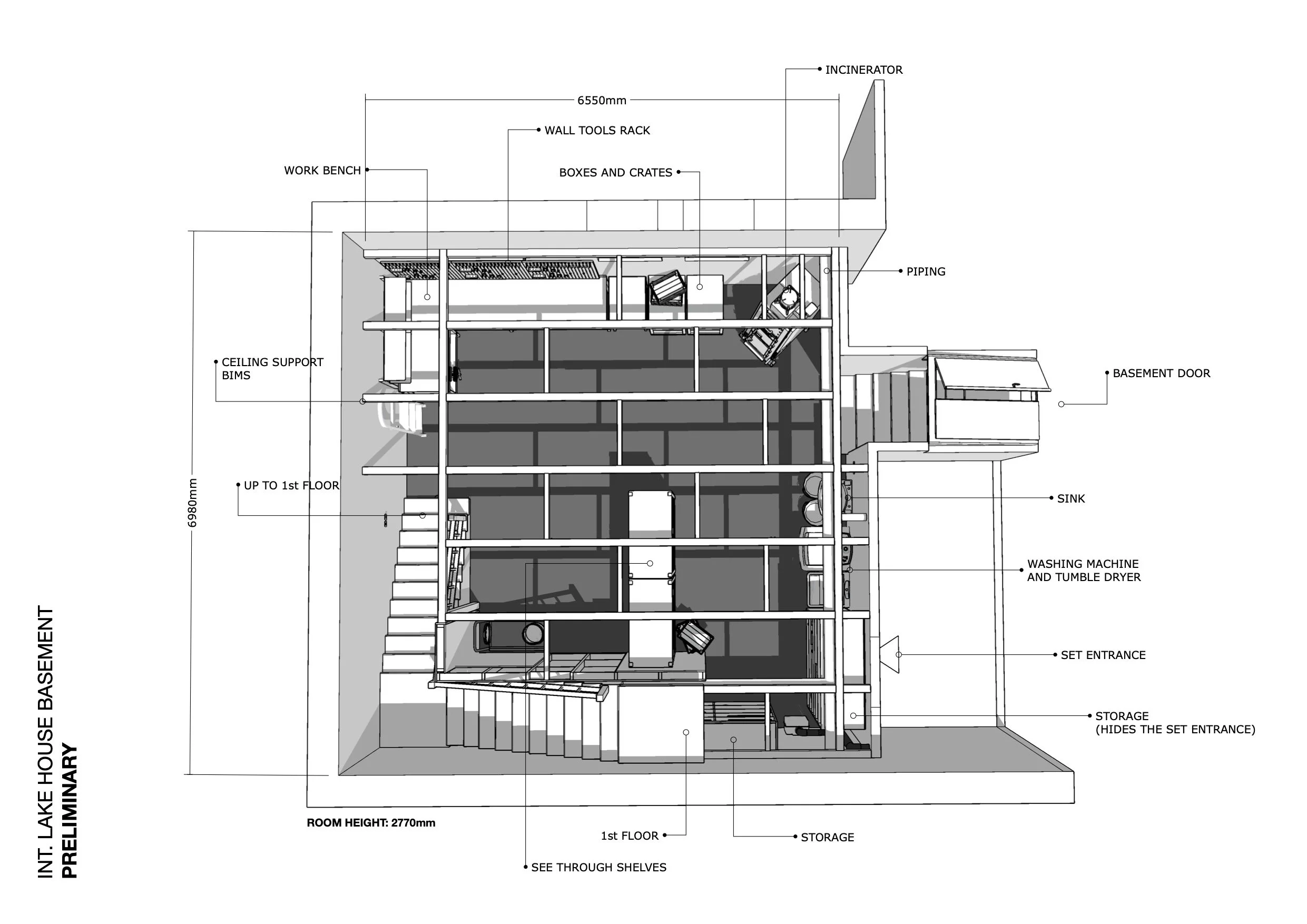
Lake house interior ground floor. This was build with the exterior as shown at the machetes. It took the whole sound stage, a bit less than 50m X 30m. In a different soundstage we had the first floor and separately the basement

Ema’s flashback

Mark’s office

Till death

Director / Scott Dale
DOP / Jamie Cairney

Production / Millennium Media
Production design / Orlin Grozdanov

Assistant to the art director

2021